Dom na sprzedaż Świdnica (gw), Pszenno

4 pokoje
116.00 m²
6 026,72 zł/m2
GLDS-DS-123
Oblicz ratę kredytu

699 100 zł

Dom na sprzedaż
Nowa oferta

Szczegóły oferty

Symbol oferty GLDS-DS-123
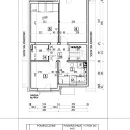
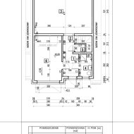
Powierzchnia 116,00 m²
Liczba pokoi 4
Rodzaj domu segment środkowy
Pomieszczenia
Beata Doruch

Beata Doruch

Manager
Nr licencji: 24677

Napisz wiadomość 43 Ofert

Opis nieruchomości

W Pszennie dom w zabudowie szeregowej o powierzchni 116m2, z ogrodem o powierzchni ok 205m2.

Stan deweloperski. Wewnątrz rozprowadzone ogrzewanie gazowe, instalacja wodna, kanalizacyjna i elektryczna oraz internet - światłowód.
Dwukondygnacyjny.
Na parterze - salon z aneksem kuchennym, łazienka, garaż, przedpokój. Na piętrze - trzy pokoje, garderoba, łazienka, korytarz. Dodatkowo można zaadaptować poddasze już we własnym zakresie.

Termin oddania - koniec 2025 roku

Standard budynku:
- dachówka ceramiczna
- podjazd do garażu: bruk betonowy
- ogrodzenie domu (panelowe): tył, boki, z paneli ogrodzeniowych zgrzewanych (wys. 1,25 m)
- ścieżka do głównego wejścia: bruk betonowy
- okna PCV – wartość współczynnika przenikania ciepła - 1,1 UW, okna rozwierno – uchylne
- rolety na parterze manualne
 

Zapraszam do kontaktu oraz na bezpłatną prezentację :)

Strona dewelopera www.silver-city.pl. Kupujący nie płaci wynagrodzenia dla biura.

 

Beata Doruch, numer licencji 24677

tel 535404130, mail beatadoruch@goldest.pl

 

Biuro GoldEst Beata Doruch zapewnia:

  • kompleksową pomoc przy sprzedaż, zakupie, najmie lub wynajmie nieruchomości
  • pomoc doradcy finansowego przy zakupie kredytowym
  • obsługę notarialną
  • uzyskanie Certyfikatu Świadectwa Charakterystyki Energetycznej.

 

Treść niniejszego ogłoszenia nie stanowi oferty handlowej w rozumieniu Kodeksu Cywilnego. Oferty tworzone są na podstawie oględzin nieruchomości oraz informacji uzyskanych od właścicieli.

Kalkulatory

Kalkulator kredytowy

Wysokość raty

PLN
%

Kalkulator kosztów

Taksa notarialna
(opłata notarialna)

Wniosek o wpis do KW

VAT od prowizji
agencji nieruchomości

VAT od taksy notarialnej
(opłaty notarialnej)

Prowizja agencji nieruchomości

Wypisy aktu notarialnego

Razem

Uwaga: mogą wystąpić dodatkowe opłaty za założenie księgi wieczystej oraz ustanowienie hipoteki.

PLN
PLN
PLN
PLN
PLN
%
PLN

Manager

Proszę wprowadzić poprawne imię i nazwisko
Proszę wprowadzić poprawny numer telefonu
Proszę wprowadzić poprawny adres e-mail
Proszę zaznaczyć wymagane zgody
Rozwiąż równanie:
30 6
Niepoprawny wynik