Mieszkanie na sprzedaż Strzegom

1 pokoj
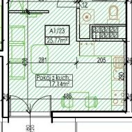
25.77 m²
8 998,99 zł/m2
2 piętro
GLDS-MS-99
Oblicz ratę kredytu

231 904 zł

Mieszkanie na sprzedaż

Szczegóły oferty

Symbol oferty GLDS-MS-99
Powierzchnia 25,77 m²
Powierzchnia użytkowa [m2] 25,77 m²
Liczba pokoi 1
Rodzaj budynku budynek wielorodzinny
Piętro 2
Liczba pięter w budynku 4
Stan lokalu deweloperski
Instalacje INTERNETOWA
Balkon jest
Rok budowy 2024
Gaz jest
Woda jest
Ogrzewanie C.O. GAZOWE
Winda tak
Przystosowania dla niepełnosprawnych tak
Pomieszczenia
Beata Doruch

Beata Doruch

Manager
Nr licencji: 24677

Napisz wiadomość 44 Ofert

Opis nieruchomości

Kawalerka na drugim piętrze z balkonem!

Stan deweloperski, termin oddania 2025 rok. Metraż to 25,77m2 plus balkon 4,80m2. Ogrzewanie gazowe, podłogowe.
W budynku dostępne komórki lokatorskie oraz miejsca parkingowe zewnętrzne i wewnętrzne. 
W budynku winda.

Lokalizacja - obok parku, ale również blisko Rynku strzegomskiego.
Zakup bez podatku PCC.

W ofercie dostępne także inne oferty: 1, 2 i 3 -pokojowe z balkonami lub tarasami.
 

Zapraszam do kontaktu oraz na bezpłatną prezentację :)

 

Strona dewelopera www.silver-city.pl. Kupujący nie płaci wynagrodzenia dla biura.

 

Beata Doruch, numer licencji 24677

tel 535404130, mail beatadoruch@goldest.pl

 

Biuro GoldEst Beata Doruch zapewnia:

  • kompleksową pomoc przy sprzedaż, zakupie, najmie lub wynajmie nieruchomości
  • pomoc doradcy finansowego przy zakupie kredytowym
  • obsługę notarialną
  • uzyskanie Certyfikatu Świadectwa Charakterystyki Energetycznej.

 

Treść niniejszego ogłoszenia nie stanowi oferty handlowej w rozumieniu Kodeksu Cywilnego. Oferty tworzone są na podstawie oględzin nieruchomości oraz informacji uzyskanych od właścicieli.

Lokalizacja nieruchomości

Kalkulatory

Kalkulator kredytowy

Wysokość raty

PLN
%

Kalkulator kosztów

Taksa notarialna
(opłata notarialna)

Wniosek o wpis do KW

VAT od prowizji
agencji nieruchomości

VAT od taksy notarialnej
(opłaty notarialnej)

Prowizja agencji nieruchomości

Wypisy aktu notarialnego

Razem

Uwaga: mogą wystąpić dodatkowe opłaty za założenie księgi wieczystej oraz ustanowienie hipoteki.

PLN
PLN
PLN
PLN
PLN
%
PLN

Manager

Proszę wprowadzić poprawne imię i nazwisko
Proszę wprowadzić poprawny numer telefonu
Proszę wprowadzić poprawny adres e-mail
Proszę zaznaczyć wymagane zgody
Rozwiąż równanie:
25 6
Niepoprawny wynik